Atendimento Whatsapp WEB
 

SOLAR DAS MONTANHAS Cód. V4330

Várzea Grande - Gramado / RS
R$ 256.662,00
  • Área Total:200,00 m²

Área Total do Terreno 200,00m² : 10,00m de largura X 20,00m de comprimento.

  • Agua
  • Árvores
  • Caixa d'água
  • Rede Esgoto

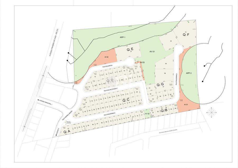
Empreendimento com ótima localização, em área plana, com uma vista deslumbrante do Vale das Montanhas. Constituído por 82 lotes, com um desenho urbano confortável e espaços coletivos que proporcionam vivências de qualidade.

82

Terrenos

200 a 1640


IMÓVEIS NO MESMO EDIFÍCIO / CONDOMÍNIO

Usamos cookies para personalizar e melhorar a sua experiência. Ao navegar neste site, você concorda com a nossa Política de Privacidade.